Skip To Content

1511 Clarcona Road

Apopka, FL 32703
  • $80,000
  • STATUS: Pending
  • ON SITE: 22 Days
  • MLS #: O6382788
Pending
$80,000
  • 0
    BEDS
  • 0.18
    ACRES
  • 0
    BATHS
  • 0
    1/2 BATHS
Neighborhood:
Type:
Vacant Land / Lots
County:
Area:

School Information

Elementary School:
Middle School:

Description

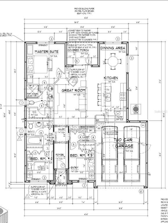
Under contract-accepting backup offers. Don’t miss this incredible opportunity to build your brand-new home in the heart of Apopka! This prime homesite already has an approved building permit from Orange County for a single-family residence and best of all, there is NO HOA. The seller has done all the heavy lifting for you. Building permits and septic permit fees have already been paid. In addition, approximately $25,000 in Orange County impact fees have already been paid and will transfer to the new owner as a credit. Approved plans include a beautiful designed 3-bedroom, 2-bath home with a 2-car garage. The seller will transfer the approved building permit to the new owner, making this a seamless and ready-to-build opportunity. Please use as-is-contract. POF when submitting contract.

Monthly Payment Calculator




© 2026 My Florida Regional MLS DBA Stellar MLS. All rights reserved. All listings displayed pursuant to IDX. All listing information is deemed reliable but not guaranteed and should be independently verified through personal inspection by appropriate professionals. Listings displayed on this website may be subject to prior sale or removal from sale; availability of any listing should always be independently verified. Listing information is provided for consumers personal, non-commercial use, solely to identify potential properties for potential purchase; all other use is strictly prohibited and may violate relevant federal and state law. Data last updated 2026-03-09T23:44:39.67.
www.pristinepropertiesonline.com/homes/173071481
Print Image

1511 Clarcona Road Apopka, FL 32703

  • Price: $80,000
  • Status: Pending
  • On Site: 22 Days
  • MLS #: O6382788
0
Beds
0
Baths
0
½ Baths
0.18
Acres
Neighborhood:
Apopka
County:
Orange
Area:
Apopka
Elementary School:
Wheatley Elem
Middle School:
Apopka Middle
Property Description
Under contract-accepting backup offers. Don’t miss this incredible opportunity to build your brand-new home in the heart of Apopka! This prime homesite already has an approved building permit from Orange County for a single-family residence and best of all, there is NO HOA. The seller has done all the heavy lifting for you. Building permits and septic permit fees have already been paid. In addition, approximately $25,000 in Orange County impact fees have already been paid and will transfer to the new owner as a credit. Approved plans include a beautiful designed 3-bedroom, 2-bath home with a 2-car garage. The seller will transfer the approved building permit to the new owner, making this a seamless and ready-to-build opportunity. Please use as-is-contract. POF when submitting contract.
Exterior Features

Lot Features Cleared Lot Size Dimensions 63 x 100 x 63 x 100 Road Frontage Type Access RoadCity Street Road Surface Type Paved Water Access Yn No Water Extras Yn No Water View Yn No Waterfront Feet Total 0 Waterfront Yn No

Interior Features

Sewer Septic Needed Water Source Public

Property Features

Association Yn No Current Use Residential Flood Zone Code X For Lease Yn No Listing Terms CashConventional Ownership Fee Simple Realtor Info As-Is Required Remarks Under contract-accepting backup offers. Special Listing Conditions None Tax Annual Amount 488 Total Annual Fees 0 Total Monthly Fees 0 Utilities Street Lights Zoning R-3


Listing information © 2026 My Florida Regional MLS DBA Stellar MLS..
Listing provided courtesy of AGL BROKERAGE CORP: 407-496-1833.



© 2026 My Florida Regional MLS DBA Stellar MLS. All rights reserved. All listings displayed pursuant to IDX. All listing information is deemed reliable but not guaranteed and should be independently verified through personal inspection by appropriate professionals. Listings displayed on this website may be subject to prior sale or removal from sale; availability of any listing should always be independently verified. Listing information is provided for consumers personal, non-commercial use, solely to identify potential properties for potential purchase; all other use is strictly prohibited and may violate relevant federal and state law. Data last updated 2026-03-09T23:44:39.67.
 
https://bt-photos.global.ssl.fastly.net/mfr/orig_boomver_2_O6382788-2.jpg https://bt-photos.global.ssl.fastly.net/mfr/orig_boomver_2_O6382788-2.jpg https://bt-photos.global.ssl.fastly.net/mfr/orig_boomver_2_O6382788-2.jpg
Logo
Pristine Properties
730 E Wade Street
Trenton FL, 32693