Skip To Content

118 Saint Pierres Way

Apollo Beach, FL 33572
  • $169,000
  • STATUS: Active
  • ON SITE: 36 Days
  • MLS #: TB8454942
$169,000
  • 3
    BEDS
  • 0.13
    ACRES
  • 2
    BATHS
  • 1
    1/2 BATHS
  • 1,452
    SQFT
  • $116
    $/SQFT
Type:
Manufactured Home
Built:
1990
County:

School Ratings & Info

Description

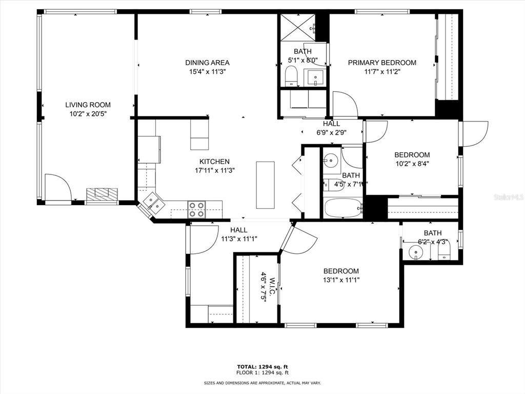
****VALUE PRICED**** Welcome to Caribbean Isles Residential Cooperative, a 55+, Waterfront, Resident Owned Community that stands out from many. This 3 Bed, 2 ½ Bath home offers an array of features for comfortable living. Some of the features include vaulted ceilings throughout, creating an airy and spacious atmosphere. The kitchen, with it's eat-in area, has plenty of room. The living room, versatile in function, can be utilized as a living room or an expansive dining area. The Florida Room is surrounded by windows for maximum natural light. The Primary Bedroom features an ensuite full bathroom, while the second primary bedroom includes a convenient ensuite ½ bath, making it an ideal space for guests, separate from the main living areas. A full bath in the hallway adds to the convenience. Recent upgrades include replacement of all floors, a AMS weather-lok roof-over system that has a Limited lifetime warranty. Beyond the house, explore the community's outstanding Resort Style Amenities. Outdoor enthusiasts will appreciate the kayak and boat launch facilities, with direct access to Tampa Bay through the canal system. Engage in friendly competition with bocce ball, shuffleboard courts, and horseshoes. The heated community pool offers year-round enjoyment. Indoors, the clubhouse beckons with a craft room and a spacious game room equipped with pool tables, card tables, an indoor bar, shuffleboard, and darts—perfect for fostering creativity and socializing. The community hosts a variety of activities throughout the year, from themed dinners to dances, ensuring there's always something exciting happening to suit your preferences. Centrally located between Tampa and Sarasota/Bradenton, this community offers easy access to an abundance of nearby activities. Beaches and amusement parks are just a day trip away. We extend a warm invitation for you to visit and discover why so many have chosen to call Caribbean Isles home.

Monthly Payment Calculator




© 2026 My Florida Regional MLS DBA Stellar MLS. All rights reserved. All listings displayed pursuant to IDX. All listing information is deemed reliable but not guaranteed and should be independently verified through personal inspection by appropriate professionals. Listings displayed on this website may be subject to prior sale or removal from sale; availability of any listing should always be independently verified. Listing information is provided for consumers personal, non-commercial use, solely to identify potential properties for potential purchase; all other use is strictly prohibited and may violate relevant federal and state law. Data last updated 2026-01-17T16:45:37.347.
www.pristinepropertiesonline.com/homes/171285414
Print Image

118 Saint Pierres Way Apollo Beach, FL 33572

  • Price: $169,000
  • Status: Active
  • On Site: 36 Days
  • MLS #: TB8454942
3
Beds
2
Baths
1
½ Baths
0.13
Acres
1,452
SQFT
$116
$/SQFT
1990
Built
Neighborhood:
Caribbean Isles Residential Co
County:
Hillsborough
Area:
Apollo Beach / Ruskin
Property Description
****VALUE PRICED**** Welcome to Caribbean Isles Residential Cooperative, a 55+, Waterfront, Resident Owned Community that stands out from many. This 3 Bed, 2 ½ Bath home offers an array of features for comfortable living. Some of the features include vaulted ceilings throughout, creating an airy and spacious atmosphere. The kitchen, with it's eat-in area, has plenty of room. The living room, versatile in function, can be utilized as a living room or an expansive dining area. The Florida Room is surrounded by windows for maximum natural light. The Primary Bedroom features an ensuite full bathroom, while the second primary bedroom includes a convenient ensuite ½ bath, making it an ideal space for guests, separate from the main living areas. A full bath in the hallway adds to the convenience. Recent upgrades include replacement of all floors, a AMS weather-lok roof-over system that has a Limited lifetime warranty. Beyond the house, explore the community's outstanding Resort Style Amenities. Outdoor enthusiasts will appreciate the kayak and boat launch facilities, with direct access to Tampa Bay through the canal system. Engage in friendly competition with bocce ball, shuffleboard courts, and horseshoes. The heated community pool offers year-round enjoyment. Indoors, the clubhouse beckons with a craft room and a spacious game room equipped with pool tables, card tables, an indoor bar, shuffleboard, and darts—perfect for fostering creativity and socializing. The community hosts a variety of activities throughout the year, from themed dinners to dances, ensuring there's always something exciting happening to suit your preferences. Centrally located between Tampa and Sarasota/Bradenton, this community offers easy access to an abundance of nearby activities. Beaches and amusement parks are just a day trip away. We extend a warm invitation for you to visit and discover why so many have chosen to call Caribbean Isles home.
Exterior Features

Architectural Style Traditional Carport Spaces 1 Carport Yn Yes Construction Materials Metal Siding Covered Spaces 1 Direction Faces East Exterior Features Awning(s)Private MailboxRain Gutters Foundation Details Crawlspace Mobile Body Type Double Wide Other Structures Shed(s) Patio And Porch Features Rear Porch Pool Private Yn No Road Frontage Type Street Paved Road Surface Type PavedAsphalt Roof Membrane Water Access Yn No Water Extras Yn No Water View Yn No Waterfront Features Waterfront Waterfront Feet Total 0 Waterfront Yn No

Interior Features

Appliances DishwasherDryerElectric Water HeaterMicrowaveRangeRefrigeratorWasher Basement Crawl Space Building Area Total 1932 Cooling Central Air Cooling YN Yes Fireplace Yn No Flooring TileHardwood Furnished Furnished Heating CentralElectric Heating YN Yes Interior Features Eating Space In KitchenHigh CeilingsL DiningPrimary Bedroom Main FloorThermostatVaulted Ceiling(s)Walk-In Closet(s) Laundry Features Common AreaElectric Dryer HookupInsideWasher Hookup Levels One Rooms Primary Bedroom (Walk-In Closet(s)) Living Room Bedroom 3 (Built-in Closet) Dining Room Kitchen Primary Bathroom (Walk-In Closet(s)) Bedroom 2 (Built-in Closet) Bathroom 2 Bathroom 3 Sewer Public Sewer Stories Total 1 Water Source Public

Property Features

Additional Lease Restrictions The lessee must meet the requirements as contained in the Bylaws and the Rules and Regulations and must be approved by two or more members of the Board. Must make applicationsubmit to a background check and be approved by the Board Approval Process The lessee must meet the requirements as contained in the Bylaws and the Rules and Regulations and must be approved by two or more members of the Board. Must make applicationsubmit to a background check and be approved by the Board Association Amenities GatedHandicap ModifiedLaundryPoolShuffleboard CourtVehicle Restrictions Association Approval Required Yn Yes Association Fee 242 Association Fee Frequency Monthly Association Fee Includes Community PoolManager Association Fee Monthly Amount 242 Association Fee Requirement Required Association Yn Yes Cdd Yn No Community Features Community Boat RampDockFishingPrivate Boat RampWater AccessWaterfrontClubhouseDeed RestrictionsDog ParkGated Community - No GuardGolf Carts OKHandicap ModifiedPoolSpecial Community RestrictionsWheelchair Access Down Payment Resource Yes Flood Zone Code AE Garage Yn No Homestead Yn Yes Lease Considered YN Yes Lease Restrictions YN Yes Listing Terms CashOther Max Pet Weight 40 Minimum Lease 1 Month New Construction Yn No Number Of Pets 2 Ownership Co-op Pet Restrictions Breed restrictionsCats and dogs are OKThere is a two pet limit and size restrictions apply. See Rules and Regulations for other pet restrictions that apply. Pet Size Small (16-35 Lbs.) Pets Allowed Breed Restrictions Property Sub Type Manufactured Home Realtor Info As-IsAssoc approval requiredDocs Available Senior Community Yn Yes Special Listing Conditions None Tax Annual Amount 726.04 Total Annual Fees 2904 Total Monthly Fees 242 Utilities Cable AvailableElectricity ConnectedFire HydrantPhone AvailablePublicSewer ConnectedStreet LightsUnderground UtilitiesWater Connected Yrs Of Owner Prior To Leasing Re No Zoning PD


Listing information © 2026 My Florida Regional MLS DBA Stellar MLS..
Listing provided courtesy of CARIBBEAN ISLE PROPERTY SALES INC.: 813-641-7067.



© 2026 My Florida Regional MLS DBA Stellar MLS. All rights reserved. All listings displayed pursuant to IDX. All listing information is deemed reliable but not guaranteed and should be independently verified through personal inspection by appropriate professionals. Listings displayed on this website may be subject to prior sale or removal from sale; availability of any listing should always be independently verified. Listing information is provided for consumers personal, non-commercial use, solely to identify potential properties for potential purchase; all other use is strictly prohibited and may violate relevant federal and state law. Data last updated 2026-01-17T16:45:37.347.
 
https://bt-photos.global.ssl.fastly.net/mfr/orig_boomver_1_TB8454942-2.jpg https://bt-photos.global.ssl.fastly.net/mfr/orig_boomver_1_TB8454942-2.jpg https://bt-photos.global.ssl.fastly.net/mfr/orig_boomver_1_TB8454942-2.jpg
Logo
Pristine Properties
730 E Wade Street
Trenton FL, 32693